TheBathroomStop
Doc M Pack with Stainless Steel - Blue - Grey or White Grab Rails - Lever Cistern
Doc M Pack with Stainless Steel - Blue - Grey or White Grab Rails - Lever Cistern
Couldn't load pickup availability
Close Coupled Doc M Pack, Blue, White, Grey or Stainless Steel Grab Rails
Lever Style Cistern
With or Without TMV3 mixing valve
Product Overview:
The Doc M sanitary ware in this pack personifies modern design. It is a stylish and available with polished chrome grab rails and fixings but also a practical suite built with comfort and accessibility in mind.
Elegant styling is a feature of the close coupled toilet set, with the high pan having clean, uncluttered sides, allowing for easy cleaning of the suite.
This Doc M Pack is to be used in commercial situations such as shops, offices and warehouses but can also be used in homes where grab bars and a comfort height toilet are required.
Product Details:
Doc M Pack Includes:
Disabled Toilet Pack ie Rimless Toilet Pan, Cistern (lever style) complete with fittings & seat ring - Pan Height 480mm (inc seat)
4 x Grab rails & one swing arm including toilet roll holder
Basin & basin hangers (please note basin comes with 2 tap holes and a blanking piece so the mixer tap can be positioned left or right)
Basin mixer tap, grated waste & bottle trap
White with Grey, Blue, White, Stainless Steel Grips
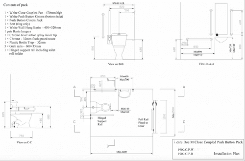
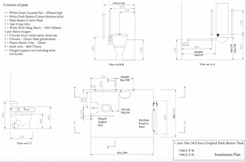
For all dimensions please see technical image.
Other Information:
RECOMMENDED... TMV3 Mixing Valve info
Depending on installation, you may require a TMV3 Mixing valve, These valves are used for blending hot and cold water to maintain a safe temperature for the user.
TMV3 Valves are used and recommended by the NHS and other health care settings.
Our Doc M packs available with either the standard white basin bottle trap or the upgraded chrome version.
Frequently Asked Questions:
Question: How quickly can I get this pack?
Answer: We can usually deliver the white and stainless rails version in 1-2 working days.
The blue and grey rail versions being slightly more unusual take around 3-4 working days.
Question: Does this pack include a TMV3 Valve?
Answer: No, please view related products below.
Question: Does this comply with the building regulations for a disabled bathroom?
Answer: Yes it is fully DOC M compliant.
Easy Returns:
We are sure you will be happy with this item, but if not you are welcome to exchange it for another or just return it.
Our returns period has now been extended to 30 days to give you that extra peace of mind.
Please let us know within 30 days of receiving your order and we will get it picked up for you.
Why Choose This Product?
These Doc M Packs are the best priced you will find anywhere either in store or online, they include everything required to install in commercial settings and are fully regulations compliant.


Delivery Details:
FAST DELIVERY! Delivery to site can be done in 1-2 working days.
For further Information please contact us via email info@thebathroomstop.co.uk

Share
